
The first hunch when designing Villa Abatta was to create a big volume at the back of the small site to allow for a big open space to remain in front of the structure to allow the client to benefit from a lush outdoor setting.
Another guideline was to understand a peculiar programmatic that dictates a very specific way of inhabiting the space, circulating within functions and allowing interactions to happen (or not).
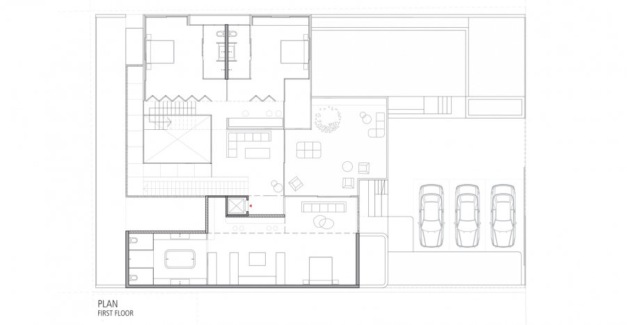
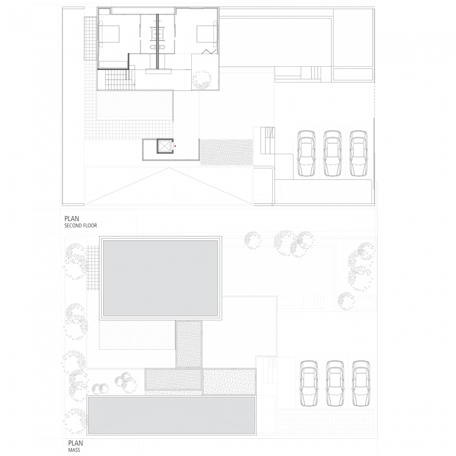
The volumetric of Villa Abatta becomes intrinsically linked to the program. The stacking of tactile volumes illustrates the functions happening below to allow each user/program to have a different spatial experience.

The first expression emerges from the earth to create a landscaped front yard and annex volume hosting all the supportive functions. This emergence frames the villa above.
The second volumetric reading consists of concrete public living areas where the boundary between indoors and outdoors is never fixed. It becomes function of time, user group and circumstance. This volume rises to the first floor to host the parental suite, fundamentally linked to the program below.



The children's studios are wrapped in a bamboo ecological envelope and hover above the concrete formation to signal an independent program that would be used seasonally by children. The layout helps create privacy between the different age groups and maximizes the efficiency of the use of spaces.


All volumes are connected by a translucent interstitial membrane made of glass blocks that allows natural air and light to flow inside the house. this membrane opens up to elevated terraces that become the gathering points of all the family. The whole villa is built around passive systems for water and cooling and uses local materials and construction techniques.



The overall reading is a tectonic stacking of programs articulated to allow for public and private functions to operate independently all the while creating optimal gathering points giving onto the lagoon.
