
DUMB BLONDE lodge and winery is a sensitive yet determined initiative.
Its fragile ecology transforms throughout its cycles and the seasons. Green and lush in summer, the vineyard carries heavy grapes in fall before stripping down in winter, where one can only perceive pale remnants of stems amongst heavy snow coats strewn linearly. The seeds then recharge to repeat the cycle.

The architectural intervention sits on top of the topography to contemplate and preserve the
plantations' sacred cycles.



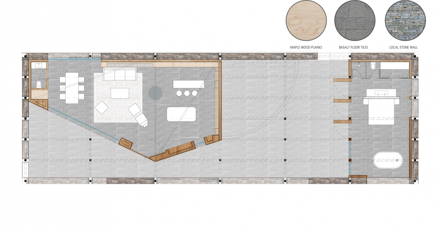
The strong retaining wall of the vineyard extends and wraps around the lodge to protect it from harsh temperatures in winter, while preserving a cool micro climate when the sun hits in the midst of the day. One can lounge outside in summer, shaded by a flowing "3arishe". The warm timber partitions rotate to expand or retract the spaces. The South sloping golden leafed roof guards and powers the lodge. Like the vines, it harvests the sun and rain to light up and irrigate the interventions' spaces and landscape.


The views are framed to capture the beauty of the vines expanding linearly and rhythmically, but only punctuated by the concentric presence of the well. Its circumference dialogues with the circular vaulted morphology of the winery, evoking the intricate cyclic process of the grapes emergence, growth and production. When entering this buried succession of caves, one starts discovering the unfolded mysteries of wine-making. Carefully dispersed skylights allow rays of light to gently penetrate the space in the morning while at night, soft warm spotlights project long shadows of barrels and bottles on the smoothly curving surfaces.



When one flies above the project, all the eye can see is an extensive, natural landscape streaked by the vines'. This ever changing landscape is sliced by a ramp penetrating the underground winery, and punctuated by the lodge's sparkling golden roof absorbing the context's natural resources to sustain the living and production habitats.
